zakaz@zapkomat.su
8 800 777-45-32
Расчитать заявку
Каталог
Типы
Гидравлика
Крепеж
Прокладки
Соединения
Кожухи
Электрика
Справочник
Запрос сотрудничества
Сервисным организациям
Контакты
Главная
Справочник
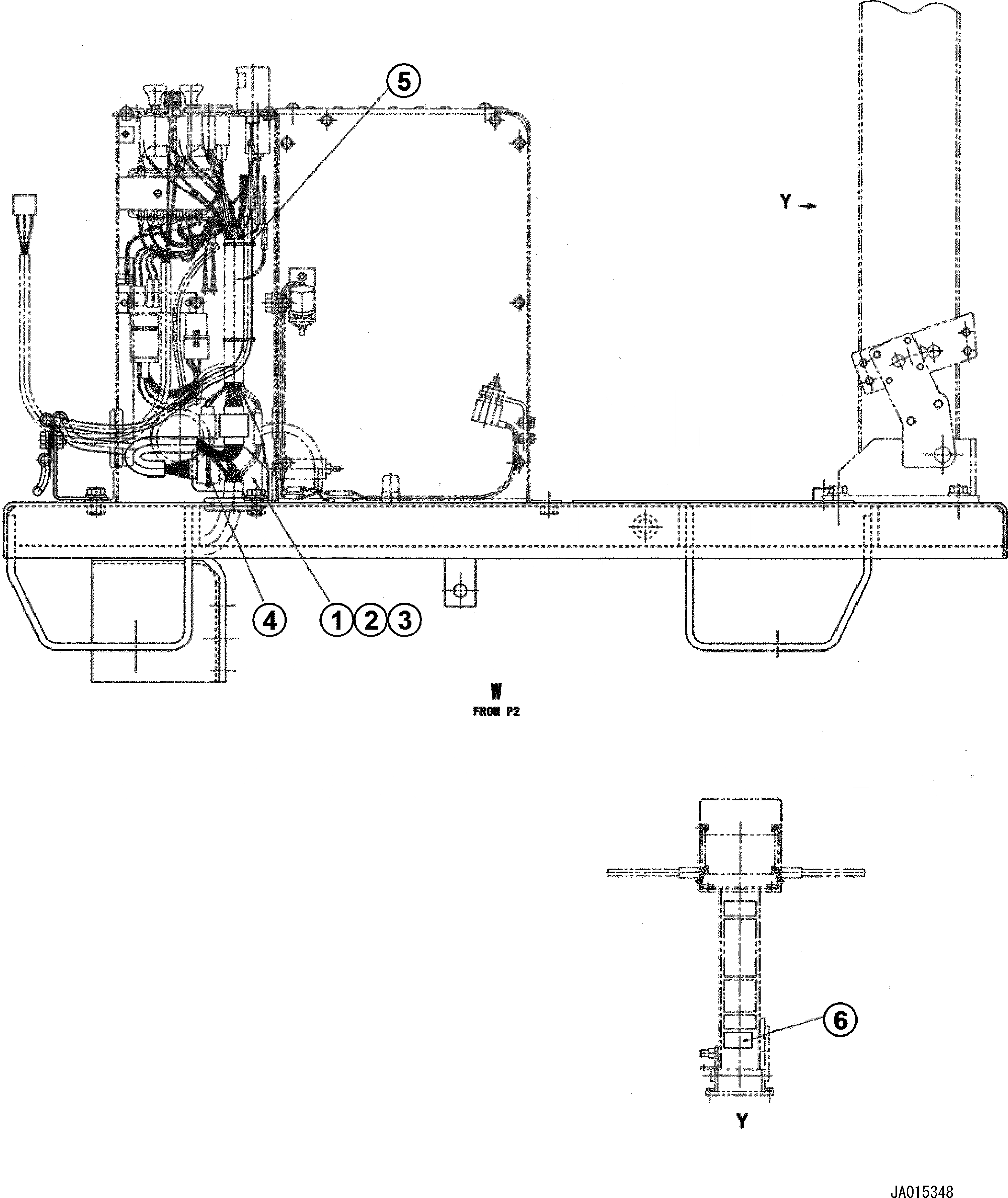
Запчасти пол (komtrax) (/)(№-) грейдеры gd511a-1 s/n 10001-up (komtrax factory installed specification) Komatsu
1
23A-06-11780
PLATE
2
01010-81225
BOLT
3
01643-31232
WASHER
4
08034-00536
BAND
5
08034-20519
BAND
6
09845-00480
PLATE, SAFETY
X
Рассчитать
Ваше имя:
Телефон *:
E-mail:
Сообщение: Пришлите наличие и стоимость
Оформить заказ