zakaz@zapkomat.su
8 800 777-45-32
Расчитать заявку
Каталог
Типы
Гидравлика
Крепеж
Прокладки
Соединения
Кожухи
Электрика
Справочник
Запрос сотрудничества
Сервисным организациям
Контакты
Главная
Справочник
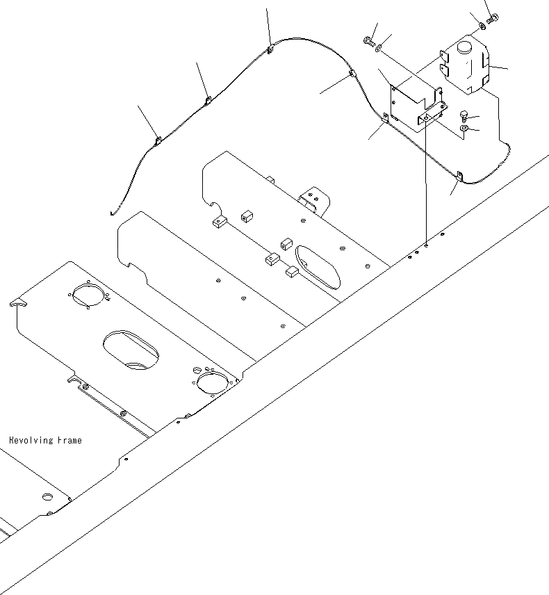
Запчасти омыватель стекла экскаваторы pc400lcse-8r s/n j30001-up Komatsu
1
21T-06-11350
WASHER ASS'Y
2
207-06-71132
BRACKET
3
01010-80616
BOLT
4
01643-30623
WASHER
5
01010-81225
BOLT
6
01643-31232
WASHER
7
21T-38-12270
CLIP
3
7
4
3
4
7
2
1
7
7
5
6
7
7
X
Рассчитать
Ваше имя:
Телефон *:
E-mail:
Сообщение: Пришлите наличие и стоимость
Оформить заказ