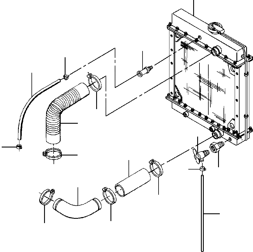
Запчасти система охлаждения грейдеры gd650a-2 s/n 202001 Komatsu



2 176 057 H1 FITTING, HOSE
3 279 025 R91 CLAMP, HOSE
4 364 357 C1 HOSE - 29 IN
5 1277 037 H1 HOSE, COOLANT
6 27 725 R1 CLAMP, HOSE
7 1243 399 H1 ELBOW, RADIATOR
8 1243 400 H1 HOSE, LOWER RADIATOR
9 681 209 C1 CLAMP, HOSE
10 444 000 ADAPTOR
11 148 344 VALVE, DRAIN
12 299 486 R1 CLAMP, HOSE
13 427 698 C1 HOSE - 24 IN
1
2
3
4
9
5
11
3
6
8
12
10
7
6
13
6
6
X
Рассчитать